Casa en San Miguel
Autor: NAVE ARQUITECTURA, MARCOS MARTÍNEZSitio Web: https://www.instagram.com/nave_arq.py/Profesión: Arquitecto/aProyectista: Arq. Kike Martinez, Arq. Marcos MartinezCliente: NNColaboradores: Isidro Martinez, Ramon Arguello, Don Sanabria, Gustavo Liuzzi, Oshua Ramos.Construcción a cargo: ConstructoraCiudad/Departamento: San Lorenzo, ParaguayIdea / Resumen: Memoria enviada por el estudio de arquitectura. El encargo consistió en realizar una casa con patio. En un terreno de forma irregular de 200 m2, y un árbol de Lapacho rosado dentro de la propiedad y otros árboles nativos en el predio baldío del vecino.
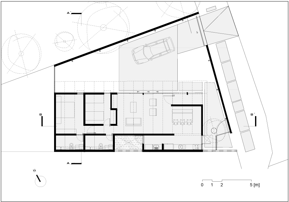
Las regulaciones municipales permiten ocupar hasta el 75% de los lotes en esta zona. Entendíamos que la forma más económica de construir la casa era de hacerla en un solo nivel es así que la misma ocupa el 50% de la superficie total del lote, se abre a un patio longitudinal de forma irregular al Noreste y toma prestada las vistas de las copas de los frondosos árboles del vecino, una batería de servicios al sur oeste protegen a la casa de la orientación más húmeda y calurosa en un clima sub-tropical.
La intervención se puede entender con tres elementos, dos muros que dan privacidad y el volumen de la casa, la lógica del sistema constructivo responde a la tirantería de madera de reforestación, hecha a partir de 3 unidades de puntales de 3mx3m y 2,80m de largo que se añaden para conseguir un mayor largor e inercia debido a la longitud del techo en el sentido trasversal. Los puntales son utilizados comúnmente en las obras civiles para la construcción de los encofrados de hormigón armado y luego se descartan por su economía y vida útil limitada, estos puntales fueron en parte utilizados para el encofrado del canalón de hormigón que cumple la función de techar las áreas húmedas y área técnica y recibir las aguas de lluvia para enviarlas a un reservorio de agua.
Las regulaciones municipales permiten ocupar hasta el 75% de los lotes en esta zona. Entendíamos que la forma más económica de construir la casa era de hacerla en un solo nivel es así que la misma ocupa el 50% de la superficie total del lote, se abre a un patio longitudinal de forma irregular al Noreste y toma prestada las vistas de las copas de los frondosos árboles del vecino, una batería de servicios al sur oeste protegen a la casa de la orientación más húmeda y calurosa en un clima sub-tropical.
La intervención se puede entender con tres elementos, dos muros que dan privacidad y el volumen de la casa, la lógica del sistema constructivo responde a la tirantería de madera de reforestación, hecha a partir de 3 unidades de puntales de 3mx3m y 2,80m de largo que se añaden para conseguir un mayor largor e inercia debido a la longitud del techo en el sentido trasversal. Los puntales son utilizados comúnmente en las obras civiles para la construcción de los encofrados de hormigón armado y luego se descartan por su economía y vida útil limitada, estos puntales fueron en parte utilizados para el encofrado del canalón de hormigón que cumple la función de techar las áreas húmedas y área técnica y recibir las aguas de lluvia para enviarlas a un reservorio de agua.
© Arquitectos.com.py.Diseño y Desarrollo Departamento Intermedia.












