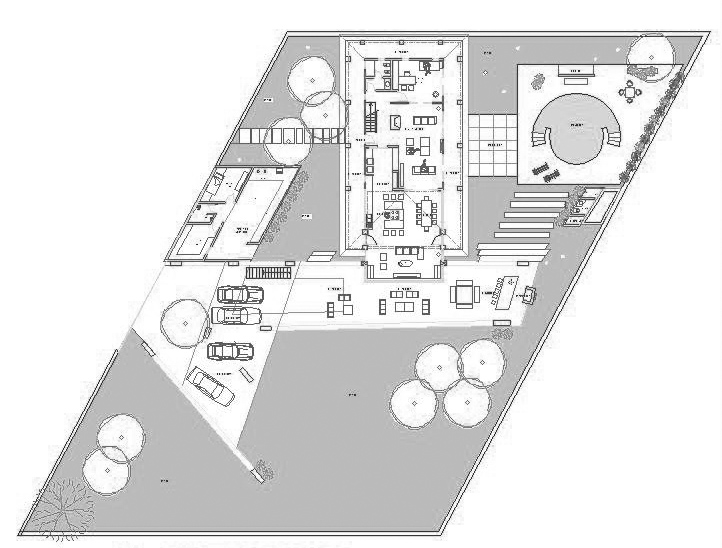
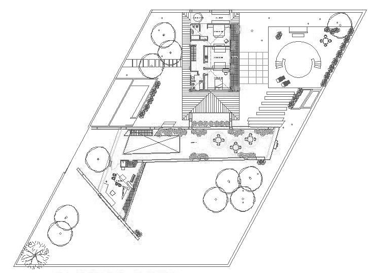
Vivienda en Sanber
Autor: MIGUEL SAMANIEGO MARIA SAMANIEGOProfesión: Arquitecto/aProyectista: El mismo que el autorCliente: FLIA SAMANIEGOConstrucción a cargo: MS ARTE ARQUITECTURACiudad/Departamento: SAN BERNARDINO PARAGUAYFotografo/Render: Idea / Resumen: AMPLIACION VIVIENDA EN SAN BER
AREA PARRILLA - GALERIA- ESTUDIO Y TERRAZA.
18 METROS DE LUZ LIBRE PARA LOGRAR LA INTEGRACION INTERIOR EXTERIOR SIN LIMITES
© Arquitectos.com.py.Diseño Web y Hosting Intermedia.











